Preloader Close

GSPrimo Design Inc. completed a temporary shoring system design for a proposed basement addition to the rear of an existing residential dwelling located on Islington Avenue in Etobicoke, Toronto, Ontario. The shoring design was required to stabilize an existing deep excavation associated with the basement addition and to provide temporary lateral support during construction.

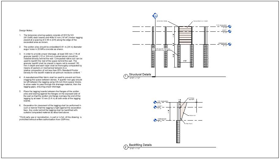
The scope of work included the design of a cantilevered soldier pile and timber lagging shoring system, developed in accordance with applicable Ontario Building Code (OBC) requirements and industry standards. GSPrimo provided structural design input, construction recommendations, and drainage considerations to support excavation stability and construction safety for the duration of the temporary works.

Go To Top