Preloader Close

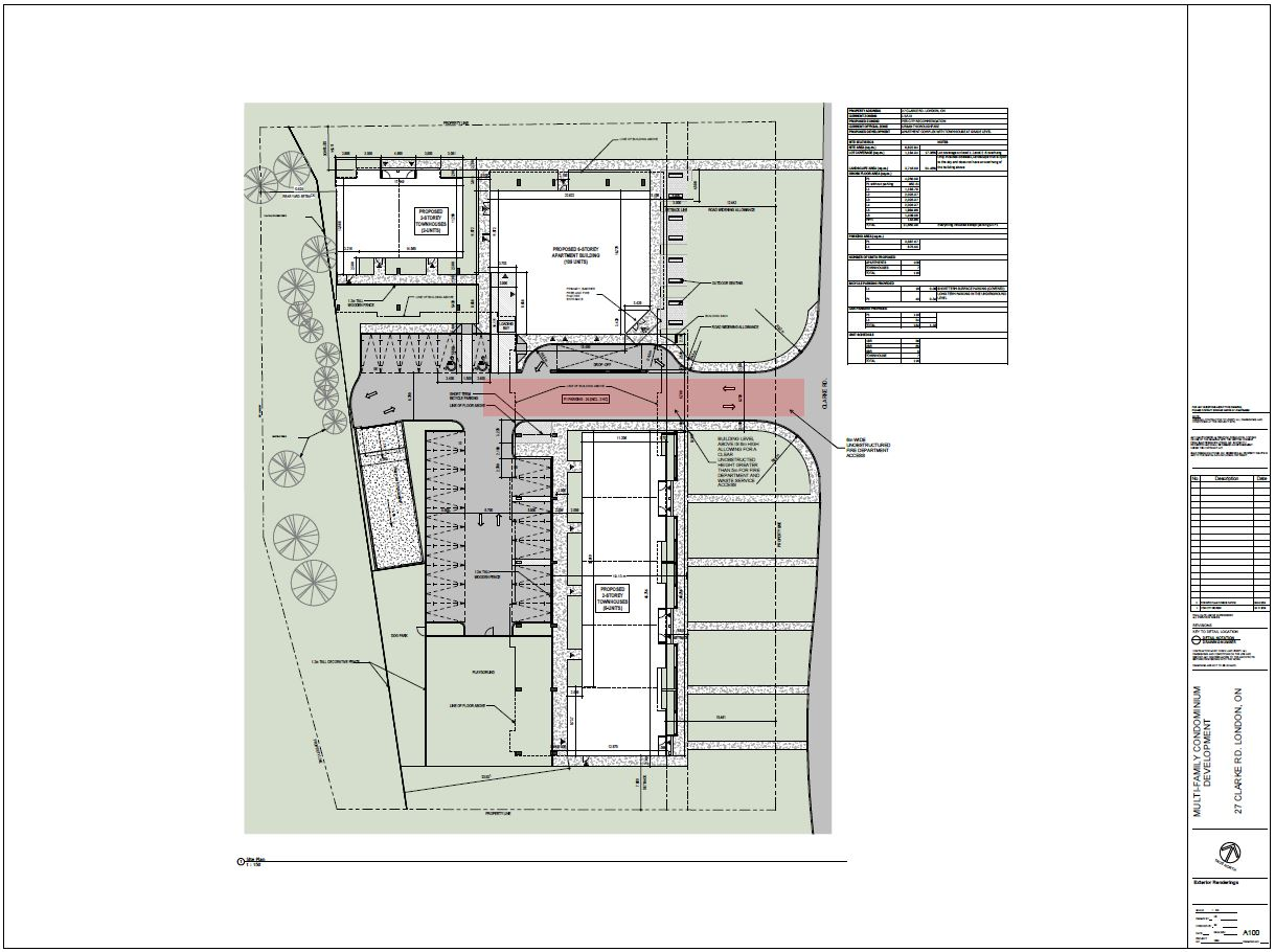
GSPrimo Design Inc. conducted a Methane Gas Study for a property located at Clarke Road in London, Ontario, to evaluate subsurface methane gas conditions in support of a proposed multi-storey residential development. The study was completed due to the Site’s proximity to an active waste management facility, where landfill gas migration may pose a risk to future buildings and occupants.

The scope of work included installation of methane gas probes, groundwater monitoring wells, groundwater level measurements, and field testing of methane concentrations using calibrated detection equipment. The assessment provided development-focused guidance regarding gas risk considerations and potential mitigation measures, supporting safe site redevelopment and compliance with applicable municipal and environmental requirements.

Go To Top