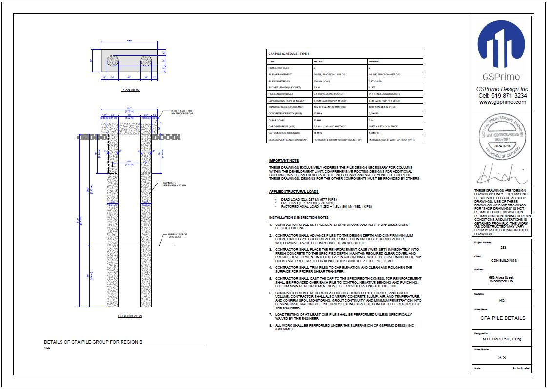
GSPrimo Design Inc. was retained to complete the pile foundation design for a proposed industrial development located at 653 Alyea Street in Woodstock, Ontario. The project consists of a large one-storey steel-framed industrial building with associated paved areas, exterior concrete pads, and landscaped spaces, requiring a deep foundation system to support structural loading requirements.
The scope of work included the design of Continuous Flight Auger (CFA) pile groups, with consideration of structural loads, pile spacing, and foundation performance. GSPrimo provided pile design criteria and engineering recommendations to support the detailed structural design and construction of the facility. The pile foundation system was selected to align with site conditions and project requirements, supporting efficient construction and long-term performance.
